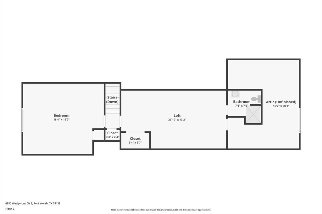
Welcome to this beautifully fully remodeled 5 bedroom, 3 bath, two story home offering space, style, and modern comfort throughout. Designed with both functionality and entertaining in mind, this home features two spacious living areas and two dining spaces, providing plenty of room for gatherings and everyday living. The thoughtfully designed layout includes three bedrooms on the first level, ideal for guests or multigenerational living, and two large bedrooms upstairs, offering privacy and flexibility. Recent upgrades provide peace of mind, including a new AC system and two brand-new electric hot water heaters. The kitchen is equipped with a gas stovetop, perfect for home chefs. Beautiful laminate flooring flows throughout the home, complemented by tile flooring in all bathrooms for durability and style. Step outside to enjoy your fenced backyard oasis with a sparkling pool, ideal for relaxing or entertaining. The property also includes a 2 car garage and showcases beautiful landscaping that enhances its curb appeal. This move in ready home combines modern upgrades, generous living space, and inviting outdoor amenities, a true must-see!
Property Type(s):
Single Family
| Last Updated | 3/4/2026 | Tract | Wedgwood Add |
|---|---|---|---|
| Year Built | 1958 | Garage Spaces | 2.0 |
| County | Tarrant |
SCHOOLS
| School District | Fort Worth ISD |
|---|---|
| Elementary School | Bruceshulk |
| Jr. High School | Wedgwood |
| High School | Southwest |
Additional Details
| APPLIANCES | Dishwasher, Double Oven, Electric Water Heater, Gas Cooktop |
|---|---|
| CONSTRUCTION | Brick |
| FIREPLACE | Yes |
| GARAGE | Yes |
| INTERIOR | Granite Counters, Open Floorplan |
| LOT | 8059 sq ft |
| PARKING | Garage Faces Front, Attached |
| POOL | Yes |
| POOL DESCRIPTION | Diving Board, Fenced, In Ground |
| SEWER | Public Sewer |
| STORIES | 2 |
| SUBDIVISION | Wedgwood Add |
| TAXES | 5432 |
| WATER | Public |
Location
Contact us about this Property
| / | |
| We respect your online privacy and will never spam you. By submitting this form with your telephone number you are consenting for Doris Jacobs to contact you even if your name is on a Federal or State "Do not call List". | |
Listing provided by Steven Nieves, Real Estate Market Experts
This data was last updated on: 3/5/26 8:36 AM PST
This IDX solution is (c) Diverse Solutions 2026.
