|
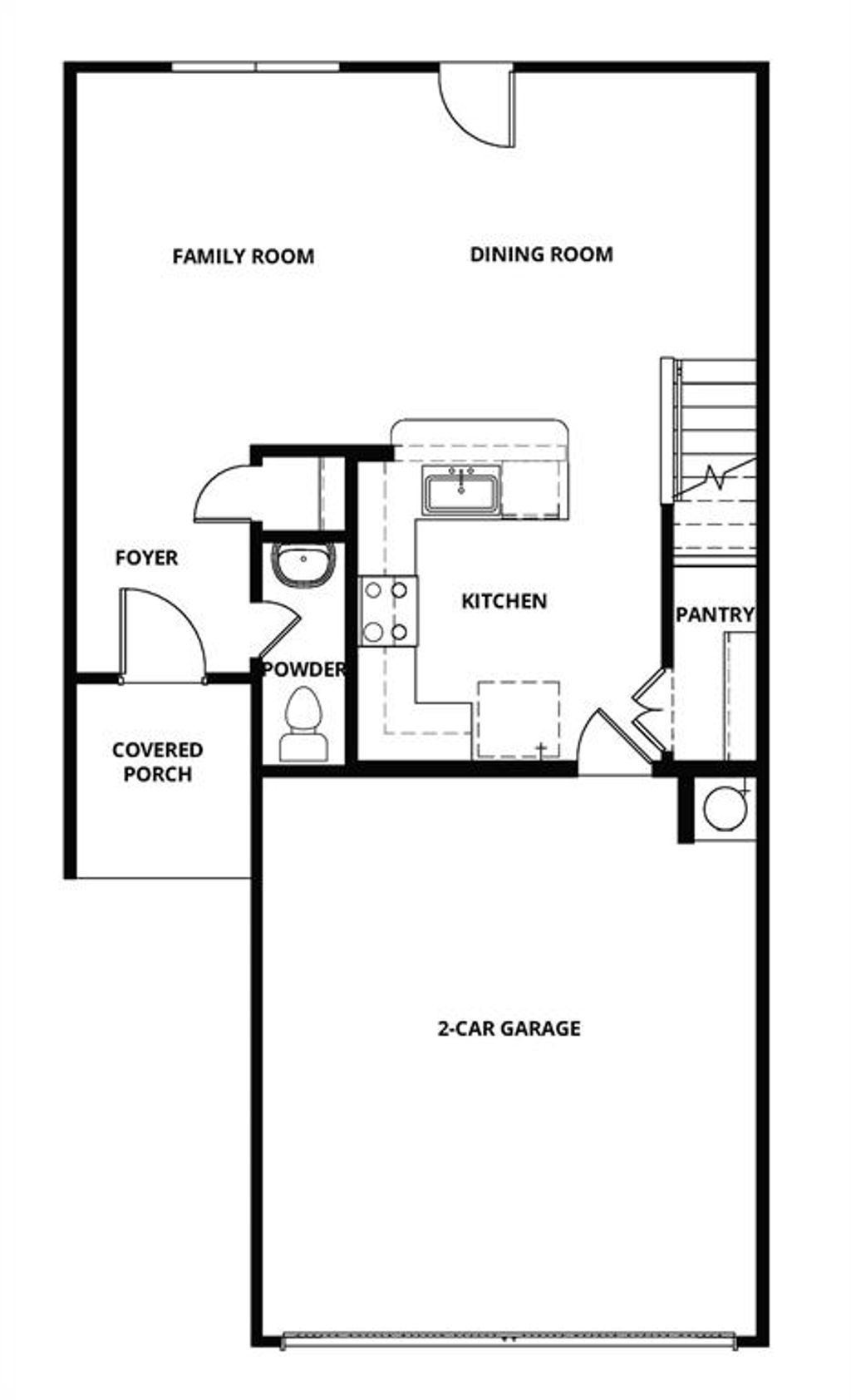
Modern Living Meets Everyday Comfort - 712 Carson Lane, Pilot Point, TX. Welcome to The Addison where this spacious and stylish two-story home is designed with both functionality and flair. Featuring 2 bedrooms, 2.5 bathrooms, and a bright, open-concept layout, this home offers plenty of space to relax, entertain, and live comfortably. The kitchen flows effortlessly into the dining and family room areas, creating a perfect gathering space. Upstairs, you'll find two private bedrooms, each with its own ensuite bathroom and walk-in closet. A centrally located laundry room adds extra ease to your daily routine. Enjoy the benefits of an attached two-car garage, providing year-round protection from the weather and easy access into your home. This home is packed with designer upgrades at no extra cost, including: contemporary flooring throughout, Whirlpool energy-efficient kitchen appliances, white wood cabinetry, on-trend kitchen backsplash, matte black fixtures, and more! Situated at 712 Carson Lane in Pilot Point, TX, you'll be just minutes from Lake Ray Roberts as well as local shopping, dining, and entertainment options. The Addison will be ready for move-in in October 2025 and is designed to impress - come see why this home stands out.
Property Type(s):
Condo/Townhouse/Co-Op
| Last Updated | 10/10/2025 | Tract | Yarbrough Farms |
|---|---|---|---|
| Year Built | 2025 | Garage Spaces | 2.0 |
| County | Denton |
SCHOOLS
| School District | Pilot Point ISD |
|---|---|
| Elementary School | Pilot Point |
| Jr. High School | Pilot Point |
| High School | Pilot Point |
Additional Details
| AIR | Ceiling Fan(s), Central Air, Electric |
|---|---|
| AIR CONDITIONING | Yes |
| AMENITIES | Maintenance Grounds |
| APPLIANCES | Dishwasher, Disposal, Electric Range, Electric Water Heater, Microwave, Refrigerator |
| CONSTRUCTION | Brick |
| GARAGE | Yes |
| HEAT | Central, Electric |
| HOA DUES | 360|Annually |
| INTERIOR | Built-in Features, Granite Counters, High Speed Internet, Pantry, Walk-In Closet(s), Wired for Data |
| LOT | 2749 sq ft |
| PARKING | Concrete, Driveway, Garage, Garage Door Opener, Garage Faces Front, Inside Entrance, Kitchen Level, Lighted, Attached |
| SEWER | Public Sewer |
| STORIES | 2 |
| STYLE | Traditional |
| SUBDIVISION | Yarbrough Farms |
| UTILITIES | Cable Available, Electricity Connected |
| WATER | Public |
Location
Contact us about this Property
| / | |
| We respect your online privacy and will never spam you. By submitting this form with your telephone number you are consenting for Doris Jacobs to contact you even if your name is on a Federal or State "Do not call List". | |
Listing provided by Mona Hill, LGI Homes
This data was last updated on: 11/1/25 10:36 PM PDT
This IDX solution is (c) Diverse Solutions 2025.
